Krásný, světlý byt 2+1 s velkou terasou, sklepní kójí a parkovacím místem
Mydlářka 164/9, Praha 6 – Dejvice
Cena: 12 000 000,- Kč
CO PRODÁVÁME?
Předmětem prodeje je krásný, světlý byt o dispozici 2+1, který se nachází v posledním patře dobře udržovaného funkcionalistického domu z roku 1942 v městské části Praha 6 – Dejvice.
Dům i samotný byt prošly v roce 2008 kompletní rekonstrukcí – včetně střechy, rozvodů, elektroinstalace, koupelny i společných prostor.
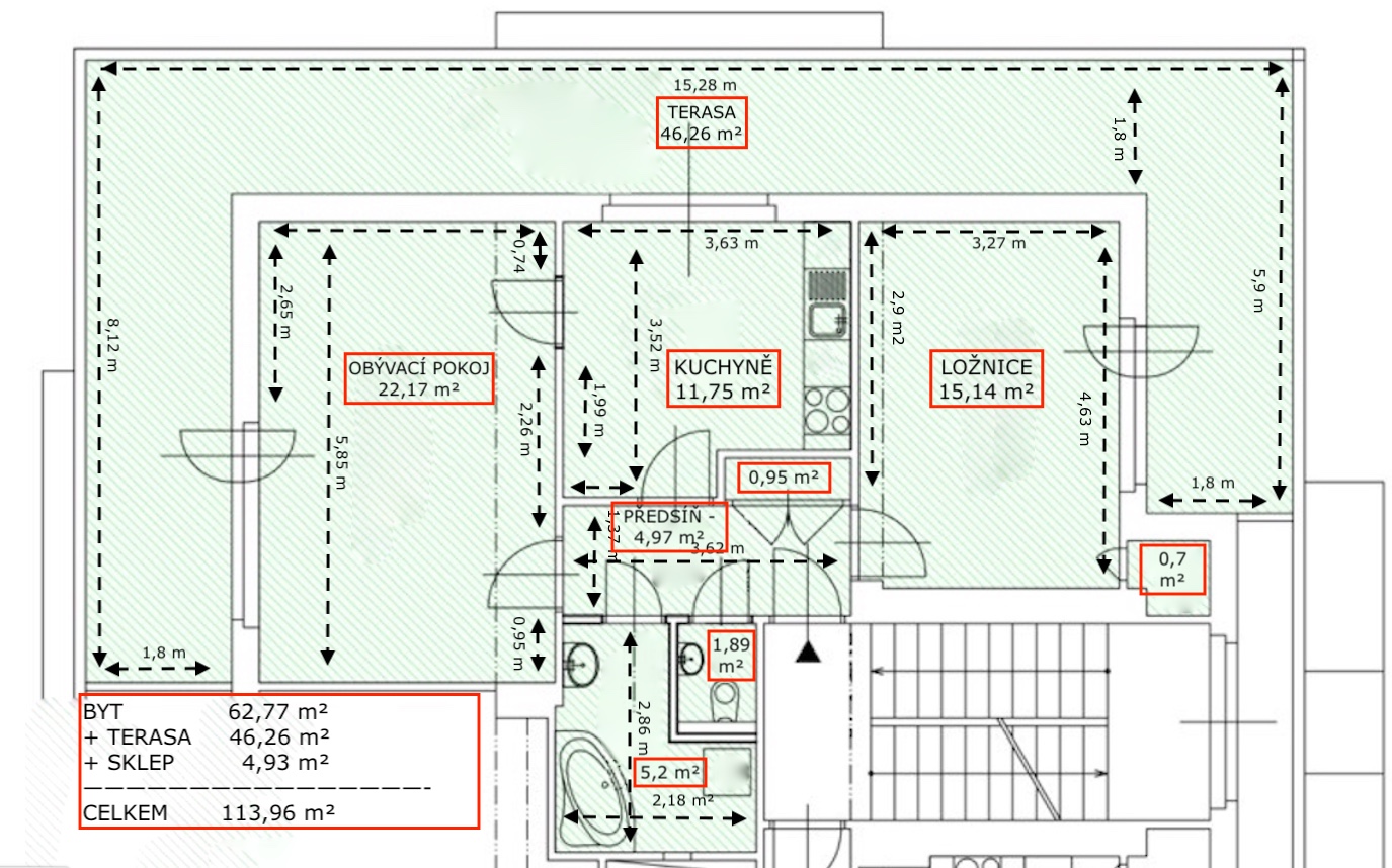
Byt zaujme především velkou terasou, která jej obepíná ze všech stran.
Obývací pokoj je orientován na jih směrem k ulici Evropská, kuchyně na západ s výhledem do korun stromů a ložnice na sever do ulice Mydlářka.
Součástí prodeje je sklepní kóje a také rezervované parkovací místo ve vnitrobloku domu.
Příjemným benefitem je praktická komora v ložnici, vestavěná skříň naproti vchodu do bytu a bezpečnostní vstupní dveře, které zvyšují komfort i pocit soukromí.
Vzhledem k dispozici bytu se nabízí i možnost úpravy na 3+kk – přesunutím kuchyňské linky do obývacího pokoje.
Protože obývací pokoj sousedí s koupelnou, kde jsou vedeny stoupačky, je tato změna technicky dobře realizovatelná.
Shrnutí:
- světlý byt 2+1 v posledním patře
- terasa obepínající byt ze všech stran
- orientace: obývací pokoj jih (Evropská), kuchyně západ (koruny stromů), ložnice sever (ul. Mydlářka)
- kompletně rekonstruovaný byt i dům (2008)
- sklepní kóje v ceně, rezervované parkovací místo ve vnitrobloku
- komora, vestavěná skříň, bezpečnostní dveře
- možnost úpravy na 3+kk






























VELIKOST
Podle Prohlášení vlastníka má byt 61,57 m² + sklep 4,93 m² + terasa 45,43 m² = 111,93 m².
Byt jsme pro jistotu přeměřili a vyšlo nám byt 62,77 m² + sklep 4,93 m² + terasa 46,26 m² = 113,96 m² užitné plochy.



Náklady na bydlení
Přehled měsíčních záloh a příspěvků do fondu oprav je uveden v evidenčním listu.

Ke stažení
– Kompletní evidenční list záloh za služby – [ke stažení zde]
– Vyúčtování záloh za služby za rok 2024 – [ke stažení zde]
– Příloha k vyúčtování záloh za služby – [ke stažení zde]
Stav bytu
Jak už bylo zmíněno, byt prošel v roce 2008 kompletní rekonstrukcí. Od té doby byl průběžně udržován a nachází se ve stavu odpovídajícím běžnému opotřebení.
Vyskytují se drobné závady, například prasklá dlaždice v koupelně či nefunkční termostat ovládající topení (tuto funkci v současnosti suplují nastavitelné hlavice na radiátorech), nebo terasová prkna v některých částech terasy jsou příliš blízko ke zdi, tj. je ztížené čištění odtoku deštové vody z terasy.
Nejzávažnějším technickým problémem je kondenzace vlhkosti nad okny v obývacím pokoji a ložnici, která se v zimních měsících projevuje vznikem plísní.
Příčinou je kombinace těsných oken (instalovaných při rekonstrukci místo původních dřevěných) a promrzání překladů nad okny, kde se vlhkost následně sráží.
K posouzení tohoto problému byly pořízeny termovizní snímky prostupu tepla pláštěm budovy a zpracována odborná zpráva s doporučením možného řešení.
Trvalé odstranění by vyžadovalo doplnění zateplení – buď z vnější strany budovy, nebo lokálně z interiéru.
Dokument od SVJ potvrzující, že nový majitel bytu má možnost si zateplení z vnějšku případně provést je k dispozici [ke stažení zde]
Shrnutí:
- byt po kompletní rekonstrukci (2008), průběžně udržovaný
- drobné závady: dlaždice, termostat, hlavice radiátorů, terasová prkna v některých částech terasy jsou příliš blízko ke zdi, (ztížené čištění odtoku deštové vody z terasy)
- problém s kondenzací vlhkosti nad okny (plíseň v zimě)
- zpracovány termovizní snímky a odborný posudek
- možné řešení: doplnění zateplení (zvenku nebo zevnitř
- Posudek ČVUT – [ke stažení zde]






Dům a SVJ
Dům je funkcionalistický objekt z roku 1942, který prošel v roce 2008 kompletní rekonstrukcí – zahrnující výměnu oken, nové rozvody a renovaci společných prostor.
Příprava tepla a teplé užitkové vody je v režii domu, který má ve sklepních prostorách vlastní plynovou kotelnu.
V minulosti došlo k vniknutí vody do sklepních prostor, způsobené přetečením okapu při zanesených svodech (gajgrech) dešťové vody.
Sklepní kóje náležející k bytu však tímto zasažena nebyla.
Podle zápisu ze schůze SVJ (2024) byl na domě zaznamenán problém se statikou a doporučeno zhotovit statický posudek.
K 31.08.2025 činil zůstatek ve fondu oprav 999 809,89 Kč
Shrnutí:
- dům z roku 1942, kompletně rekonstruován v roce 2008
- vytápění a teplá voda z vlastní plynové kotelny
- minulý problém se zatékáním vody do sklepních prostor (kóje k bytu nebyla zasažena)
- v suterénu zvýšená vlhkost
- praskliny ve zdivu – doporučen statický posudek
- fond oprav k 31.08.2025: 999 809,89 Kč











Okolí
Byt se nachází v oblíbené části Prahy 6 – Dejvicích.
V docházkové vzdálenosti je park Hanspaulka, ideální pro procházky nebo ranní běh.
Jen pár minut jízdy na kole nebo tramvají se nachází přírodní rezervace Divoká Šárka – s možností koupání (nádrž Džbán, koupaliště U Veselíků), cyklostezkami a vyhlídkami na údolí Šáreckého potoka.
Zastávka tramvaje Thákurova je téměř před domem (včetně nočních spojů), stanice metra A – Dejvická je vzdálena přibližně 10 minut chůze.
V okolí se nachází školy, školky, obchody (např. Billa), restaurace i sportovní areály – vše v příjemné pěší dostupnosti.





Snad se mi podařilo zmínit vše podstatné.
Pokud byste měli jakékoli doplňující otázky nebo se chtěli domluvit na osobní prohlídce, pište nebo volejte – jsem vám k dispozici.

